Depto 3D 2B , Estacionamiento, San Miguel , Metro Ciudad del Niño
- 66 m²
- 2
UF 3.600
$143.427.600
PORTAL URBANO SpA
UF 14,3
$570.000
Plazas de Santa María
Descubra la combinación perfecta de confort y ubicación privilegiada en este exclusivo sector residencial de Los Ángeles. Esta propiedad destaca por su excelente estado de conservación y una distribución pensada para maximizar el bienestar familiar en un entorno seguro y de alta demanda.
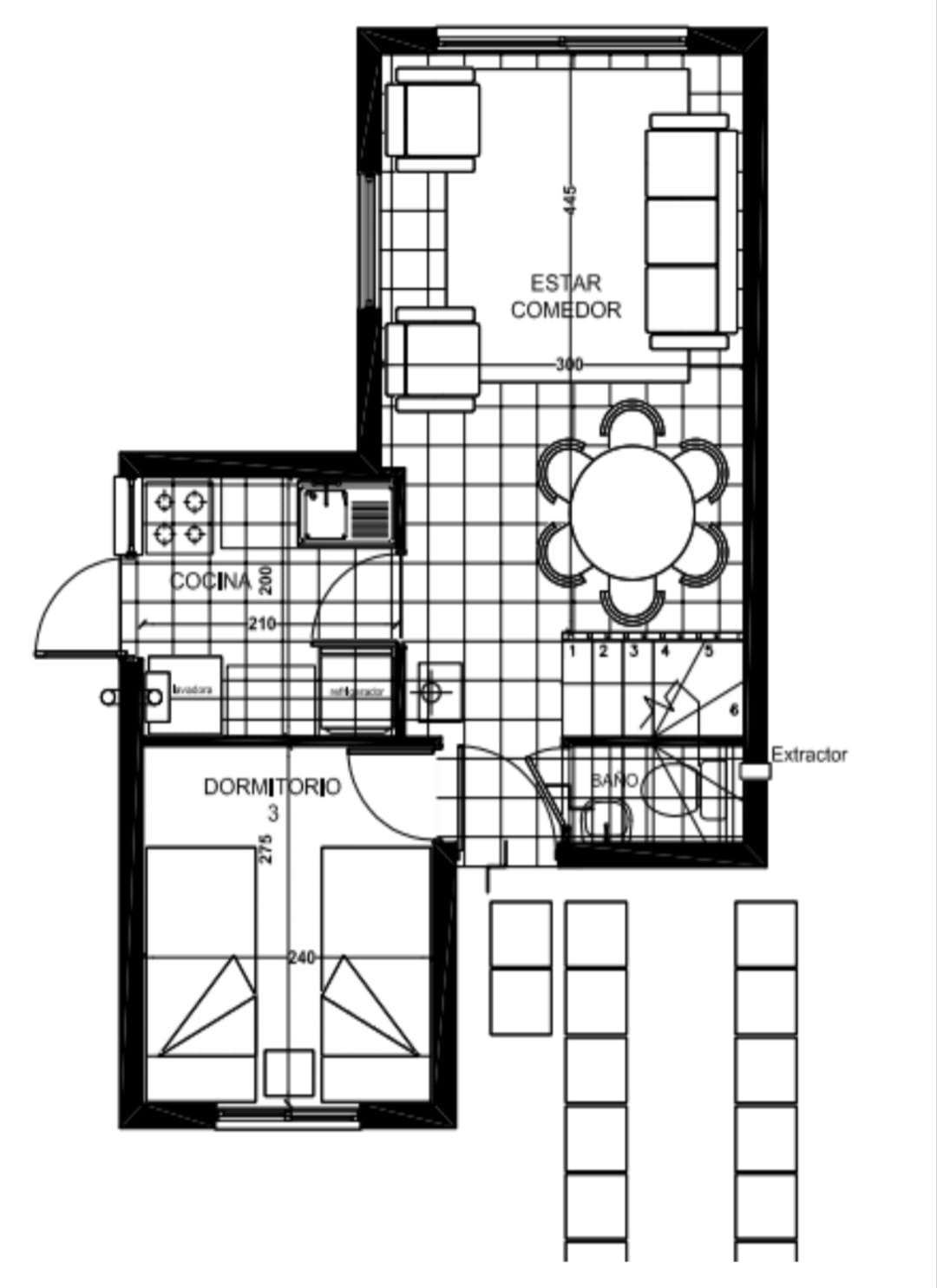
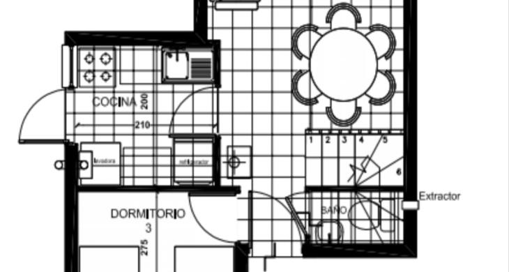
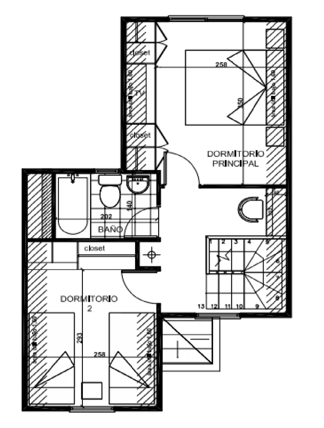
Ubicada en el codiciado sector de Plazas de Santa María, esta casa en arriendo se posiciona como una de las mejores alternativas habitacionales disponibles en la Región del Biobío. La propiedad, distribuida estratégicamente en dos niveles, ofrece una superficie optimizada para brindar amplitud y funcionalidad en cada uno de sus rincones. Con un total de tres dormitorios espaciosos, el hogar asegura un ambiente de tranquilidad y privacidad para cada miembro de la familia, complementado con dos baños completos diseñados con materiales que garantizan durabilidad y estética.
En el primer nivel, se desarrollan las áreas de convivencia social, donde el living y el comedor se integran armoniosamente para crear un espacio acogedor y luminoso gracias a su excelente orientación. La cocina, funcional y bien distribuida, permite una operatividad fluida para las labores diarias. Uno de los grandes valores añadidos de esta propiedad es su capacidad de estacionamiento, contando con espacio suficiente para dos vehículos, lo que proporciona una comodidad indispensable en la rutina urbana actual. El hecho de ser una construcción de dos pisos permite una clara segregación entre la vida social y el descanso privado, una característica altamente valorada por quienes buscan organización y orden en el hogar.
El entorno de Plazas de Santa María es reconocido por su tranquilidad y su envidiable conectividad. Los residentes de esta zona disfrutan de un acceso rápido a las principales vías de comunicación de la ciudad, facilitando el traslado hacia centros comerciales, supermercados, servicios de salud y una variada oferta gastronómica. Además, la cercanía a establecimientos educacionales de prestigio convierte a esta casa en la elección predilecta para familias que buscan reducir tiempos de traslado y vivir en un barrio consolidado, seguro y con excelente plusvalía.
Como especialistas en el corretaje de propiedades, entendemos que la elección de un hogar va más allá de sus características técnicas; se trata de encontrar un espacio que se adapte perfectamente a su estilo de vida. Esta casa en Los Ángeles cumple con los más altos estándares de habitabilidad y se encuentra en óptimas condiciones para ser habitada de forma inmediata. El sector se caracteriza por su ambiente residencial y la serenidad de sus alrededores, brindando el refugio necesario después de la jornada laboral sin alejarse de las ventajas que ofrece la modernidad urbana.
Le invitamos a programar una visita para conocer personalmente las bondades de esta excelente propiedad en el sector de Plazas de Santa María. Nuestro equipo de profesionales está preparado para brindarle toda la asesoría necesaria y guiarlo en cada paso del proceso de arrendamiento. No deje pasar la oportunidad de asegurar su bienestar en uno de los sectores más cotizados de Los Ángeles. Contáctenos hoy mismo para coordinar su cita y recibir atención personalizada.
Gastos comunes aproximados: $1
Pisos: 2
Barrio:
Metro (0 min)
Colegios (3 min)
Supermercado (6 min)
Clínicas (10 min)
Ciclovía (2 min)
Comercio (8 min)
Comisaría (7 min)
Estación de servicios (4 min)
Locomoción colectiva (2 min)
Parques (5 min)
UF 3.600
$143.427.600
PORTAL URBANO SpA
UF 16.700
$665.344.700
IAG Propiedades
UF 14,3
$570.000
Gabriel Langol Moscoso
UF 9.000
$358.569.000
Gabriel Langol Moscoso