ÚLTIMAS UNIDADES CON SUBSIDIO AUTOMÁTICO 550 UF
- 63 m²
- 1
UF 2.808
$110.989.008

Ecomac
UF 10.119,9
$400.000.000
Santa Adela
Oportunidad de inversión única Quintero, Mantagua, Ritoque, Concón.
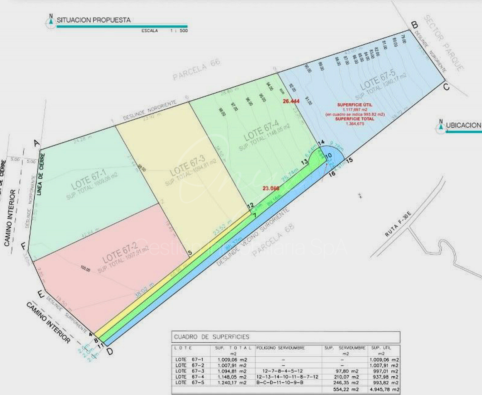
Proyecto de subdivision con 5 terrenos aprobados, con resolución de 1.000 m², en la prestigiosa Avenida Rosselot.
Esta parcela de 5500 m² en el sector de Santa Adela ofrece un potencial inigualable en una ubicación estratégica.
Esta excelente propiedad, con acceso a servicios básicos, representa una inversión inteligente para desarrolladores e inversionistas visionarios.
Este terreno goza de una excelente conectividad con el resto de Quintero y sus alrededores, ofreciendo un fácil acceso a comercios, servicios y colegios. La zona es conocida por su tranquilidad, privacidad y belleza natural, lo que la convierte en un lugar ideal para vivir o invertir.
No pierdas esta oportunidad de adquirir un terreno con un potencial innegable, en una de las zonas residenciales más prometedoras de Quintero.
- Venta individual con tabla de valores en UF por metro cuadrado. Cuentan con rol propio.
- Venta proyecto rebajado por $400MM.
- Uso 100% habitacional.
- Contamos con CIP, planos, medidas, deslindes y resoluciones.
Descubre cómo esta inversión puede ser la clave para tu próximo gran proyecto inmobiliario. Contáctanos!
UF 2.808
$110.989.008
Ecomac
UF 5.690
$224.902.940
corretajedepropiedades
UF 2.150,5
$85.000.000
Maria Elena Chacana Vargas
UF 4.807
$190.000.000
corretajedepropiedades